

Sixth Cove is a residential development by Spyros Limited, offering six detached townhouses in one of Accra’s most promising and peaceful neighbourhoods, Tse Addo.
SOLD OUT
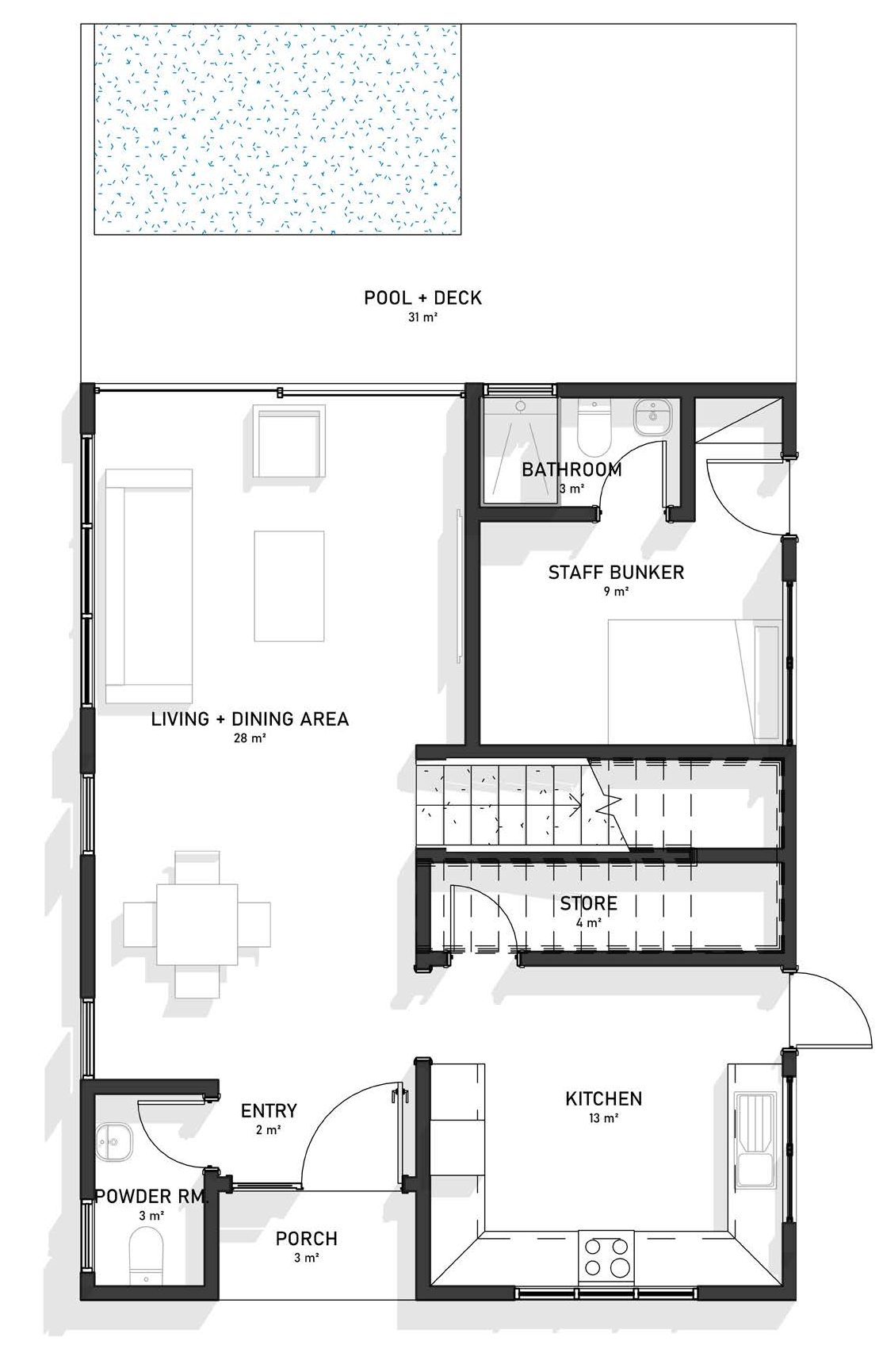
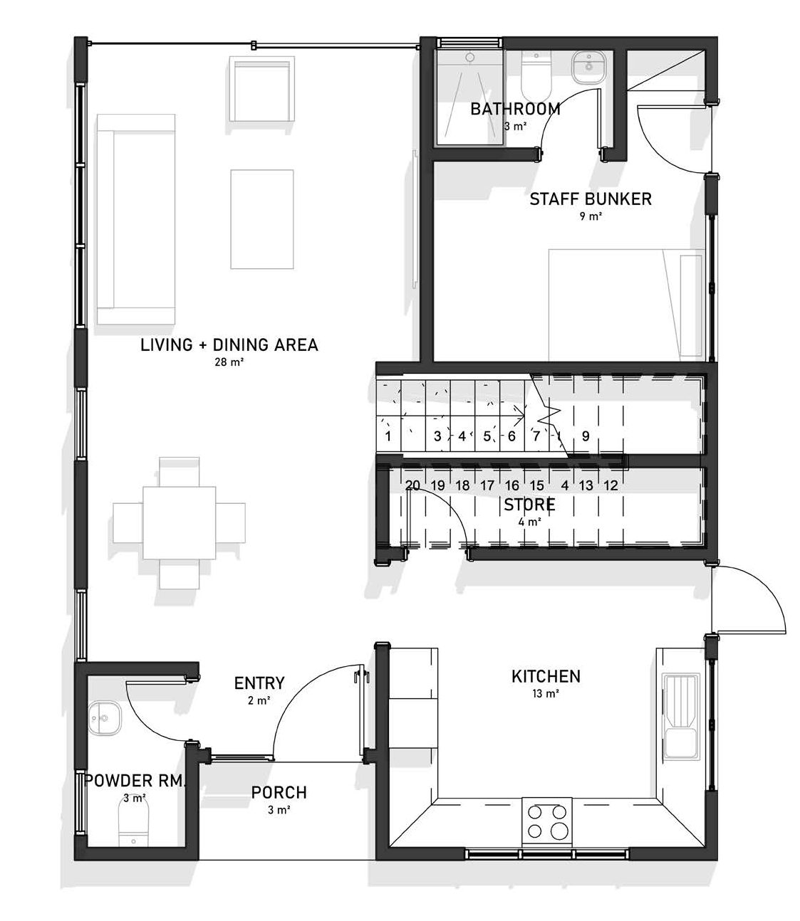
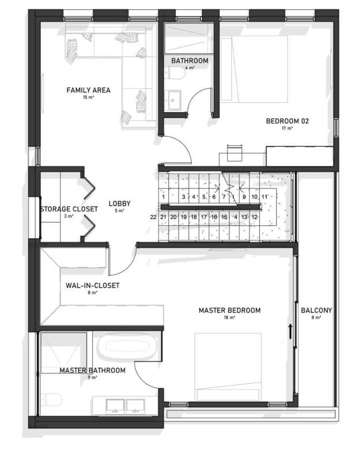
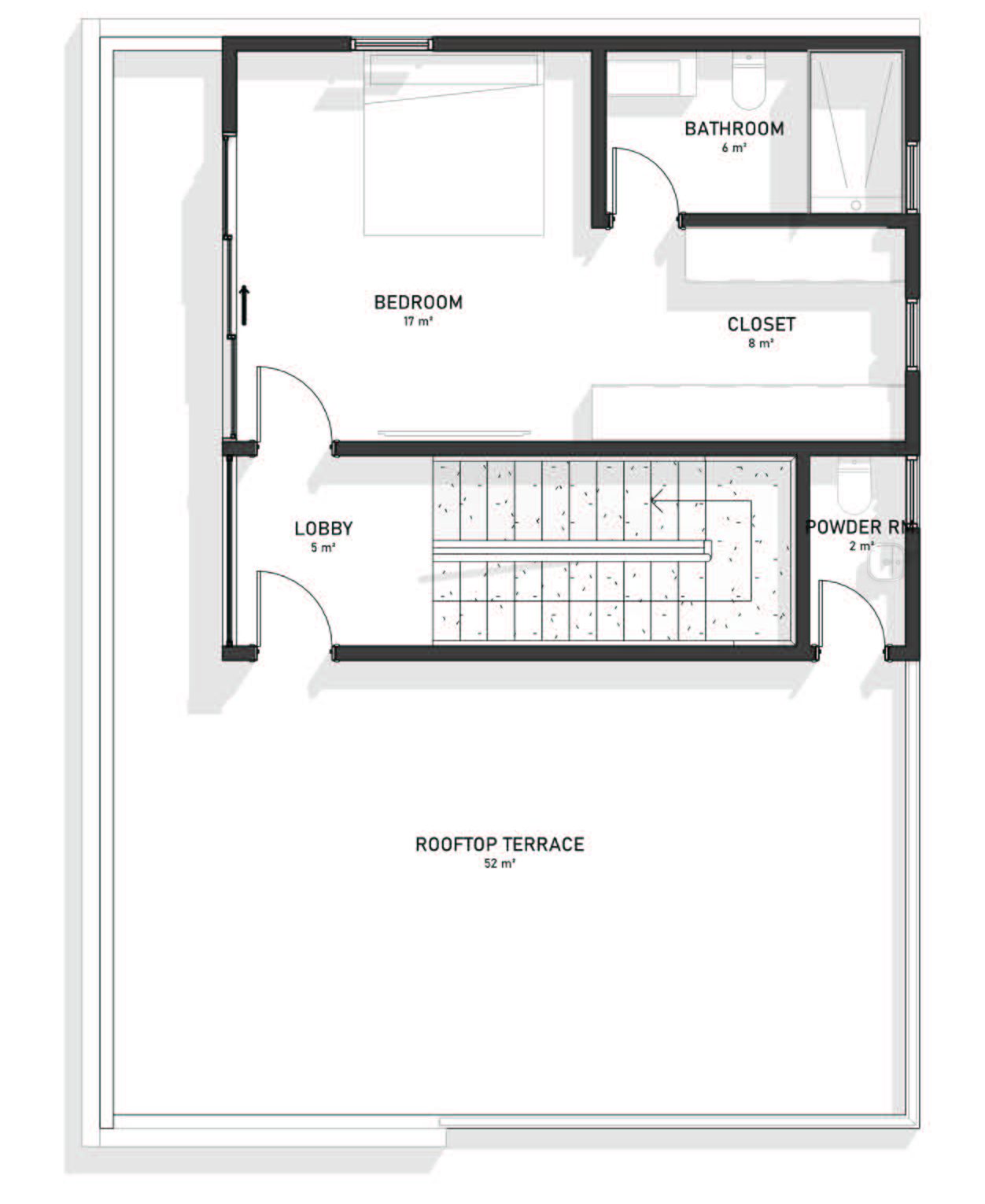
Sixth Cove is designed for individuals and families who value privacy, simplicity, and style . Each unit is thoughtfully crafted with 3 ensuite bedrooms, a rooftop Lounge, staff quarters, a family area and premium modern finishes.
Whether you are a homeowner seeking peace in the city, a returning Ghanaian building legacy, or an investor with an eye for value, Sixth Cove offers the comfort of home and the confidence of a smart investment.

Features & Facilities
En-suite Bedrooms
Rooftop Lounge
Staff Quarters with Separate entryway
Fully-fitted Kitchen
Estate Pool
Estate Gym
24hr / 7days Man Security
24hr CCTV and Surveillance
Intercom
Smart Home Features
Retail
Backup Water
Backup Power
Two Guest Washrooms
Ample Parking
Purchase Process
- Choose your preferred unit
- Select a favourable payment plan
- Sign and complete the reservation form
- Deposit $5000 reservation fee (this shall be a part of your purchase price and deducted from your final instalment payment.)
- Sign and complete Sales and Purchase Agreement
- Deposit your first instalment
SOLD OUT























